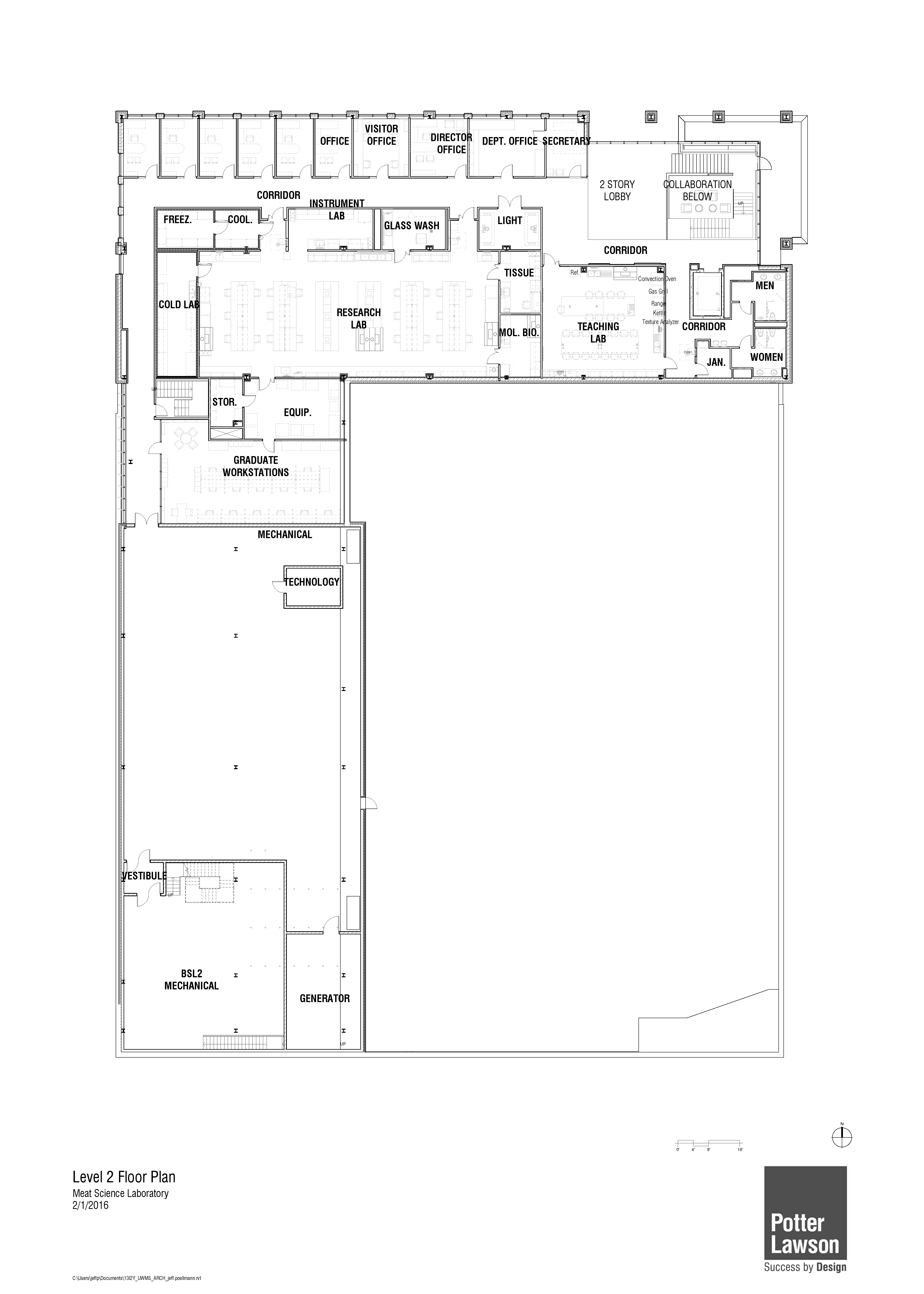
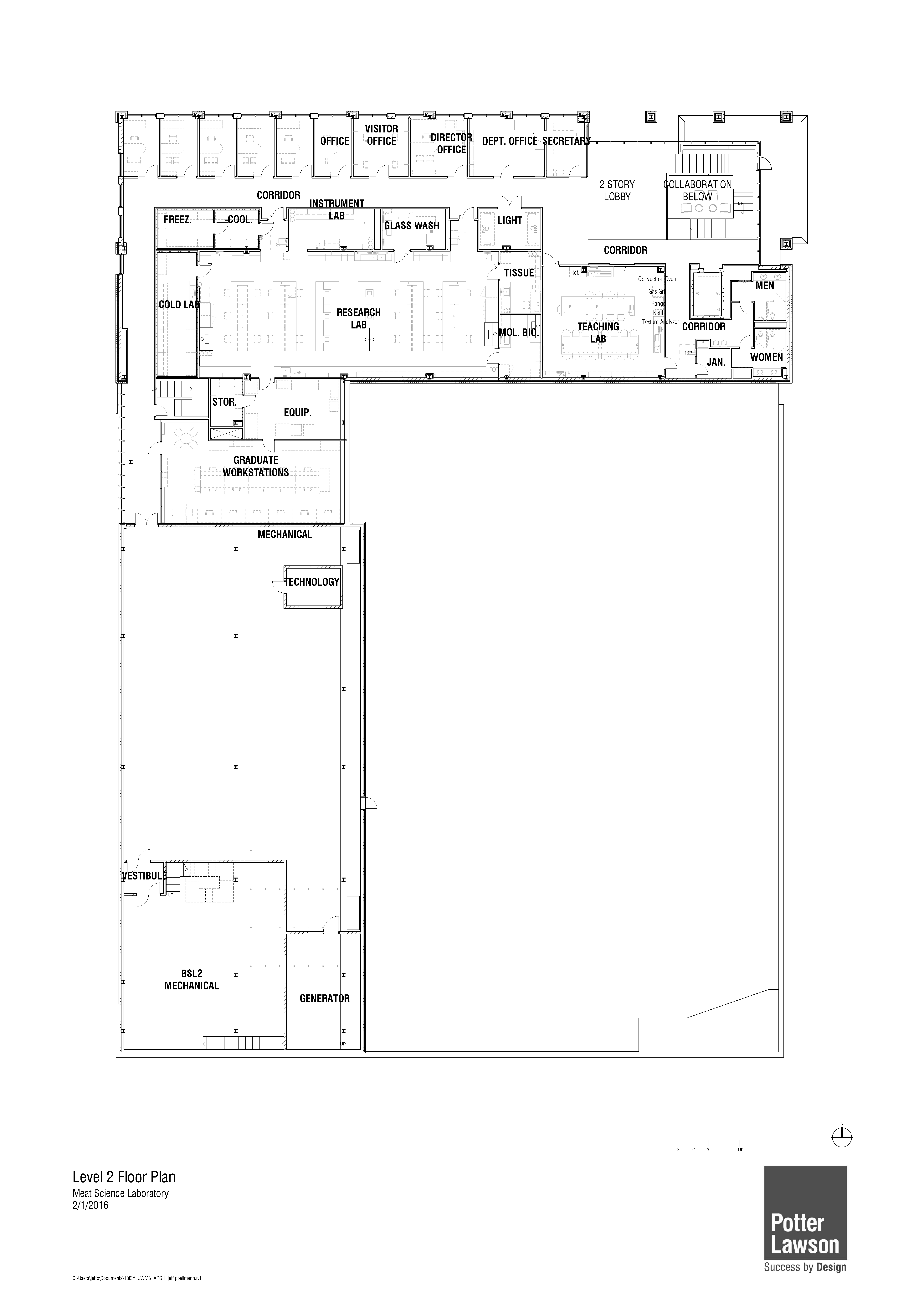
Floor Plan Drafts (Near Completion)

    As architecture & engineering meetings progress and we draw nearer to breaking ground, floor plans and visual mock-ups begin to solidify.

    Level 1 Floor PlanLevel 2 Floor Plan2015 12 17_Meat Sci Lab Render